(1) 현황
- ○○○센터에 설치된 급수용 캐스케이드 보일러 시스템에서 급탕 동시 사용률이 높아질 경우에는 급탕 공급온도가 저하되어 사용상의 불편이 발생하고 있는 상태임

- 보일러와 저탕탱크 사이에 설치된 대류펌프의 용량 부족
(보일러 33 lpm × 3대 = 약 100 lpm, 대류펌프의 유량은 50~60 lpm)
- 급탕대류펌프와 보일러 연결배관 중간에 설치된 플랜지 규격 불량
(배관 규격은 40A인데 중간에 설치된 플랜지의 규격이 25A인 제품이 잘못 설치됨)
- 저탕탱크에 연결된 급수배관의 위치 불량 (현재 저탕탱크 하부에 급수관이 연결되어 있어서 급탕 사용량이 많으면 낮은 온도의 급수가 저탕탱크 본체로 바로 유입되게 되면 저탕탱크 내 급탕의 온도를 급격히 떨어뜨릴 수 있음)
<캐스케이드 보일러와 사양표>
<저탕탱크와 보일러 사이에 설치된 급탕대류펌프 : 보일러에 비하여 유량이 부족함>
<보일러에서는 65~70 ℃ 정도의 급탕이 공급되고 있음>
<급탕 대류배관 중에 잘못 설치된 절연플랜지 : 40A 배관 → 25A 절연플랜지 → 40A 배관>
(2) 개선 및 권장 사항
- 저탕탱크에 연결된 급수배관의 위치는 보일러의 인입배관 쪽으로 연결되도록 수정하여 낮은 온도의 급수가 보일러에서 적정한 온도로 가열된 후 저탕탱크로 공급되도록 개선
- 저탕탱크와 보일러의 연결 방안과 관련하여, 현재 설치되어 있는 급탕대류펌프는 철거하고 보일러 내부에 설치된 순환펌프를 이용하는 방식의 캐스케이드 제어시스템으로 운영하는 방안 검토 (방안1)
- 급탕대류펌프를 철거하고 급탕순환펌프를 캐스케이드 보일러와 바로 연결하여 사용하는 방식도 적용 가능함 (방안2)
- 급탕 순환배관에 잘못 설치된 구경의 절연플랜지는 교체 (25A→40A)
<방안-1>
<방안-2>
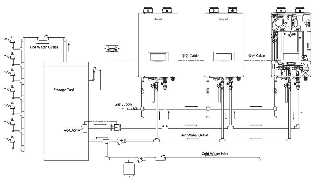
- 참고 자료 : 귀뚜라미보일러 캐스케이드 시스템 사용 설명서의 배관 연결 상세도
<외부 온수 저장탱크를 사용하는 경우>
<보일러에 내장된 순환펌프를 이용하는 경우>

(1) 현황
- 보일러와 저탕탱크 사이에 설치된 대류펌프의 용량 부족
(보일러 33 lpm × 3대 = 약 100 lpm, 대류펌프의 유량은 50~60 lpm)
- 급탕대류펌프와 보일러 연결배관 중간에 설치된 플랜지 규격 불량
(배관 규격은 40A인데 중간에 설치된 플랜지의 규격이 25A인 제품이 잘못 설치됨)
- 저탕탱크에 연결된 급수배관의 위치 불량 (현재 저탕탱크 하부에 급수관이 연결되어 있어서 급탕 사용량이 많으면 낮은 온도의 급수가 저탕탱크 본체로 바로 유입되게 되면 저탕탱크 내 급탕의 온도를 급격히 떨어뜨릴 수 있음)
(2) 개선 및 권장 사항
- 참고 자료 : 귀뚜라미보일러 캐스케이드 시스템 사용 설명서의 배관 연결 상세도